Country house with garden and terrace in Torrita di Siena, Tuscany region

Characteristics
Type
Country house
Condition
Habitable
Floor space
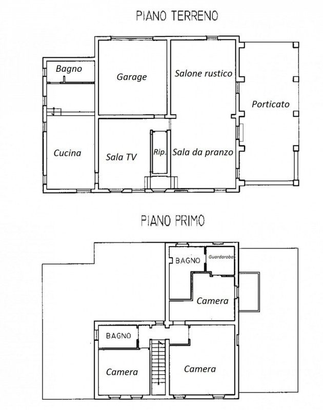
240 sqm
Garden
-
Land
-
Bedrooms
3
WC/Baths
3
Energetic Class
G
EPgl
175.00 kWh/m²a
Property ID
VC25
Distance from:
  • Airport 59 km

  • Train station 4 km

  • Ski area 29 km

  • Golf 9 km

Amenities

  • Air Conditioning
  • Balcony
  • Barbecue
  • Cable Tv
  • Fireplace
  • Garage
  • Garden
  • Heating
  • Jacuzzi
  • Parking
  • Pool
  • Sauna
  • Solar panels
  • Terrace
  • Wine cellar
  • Furnished
Description

Country house of 240 sqm with garden and terrace for sale in Torrita di Siena in the Tuscany region, Italy.

The property is located in ciliano within the municipality of Torrita di Siena, 26,5 km from Trasimeno lake, and 41,3 km from Siena.

The Country house is located 29 km from the ski slopes, and 59 km from Perugia Airport.
In close proximity, just 9 km away, there is the Golf Club Golf Club Valdichiana(Bettole).

The Country house is habitable and is composed as follow: 1 kitchens, 1 living room, 3 bedrooms, 3 bathrooms.

The Country house has fireplace, garage, garden, heating, parking, terrace.

The property is sold furnished by real estate agent. For further information, contact the seller using the form below

Region:
Tuscany
City:
Torrita di Siena
Location:
Countryside

REQUEST DETAILS

Property offert by:

REAL ESTATE AGENCY

Vittori Servizi Immobiliari

Agency profile page

Discover property surroundings

Travel ideas in the sourroundings